Estimate your costs based on your location and materials.
Yes! This plan can be customized—contact us for a free quote.


Yes! This plan can be customized—contact us for a free quote.
This designer does not offer modifications.
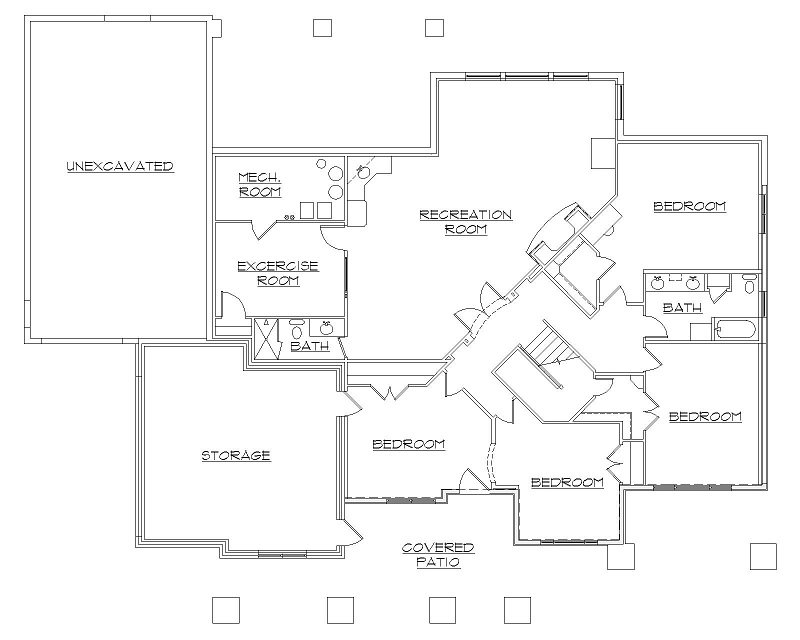
Please note: The basement is finsished adding 2468 living square feet giving this plan a total 5115 sq ft.
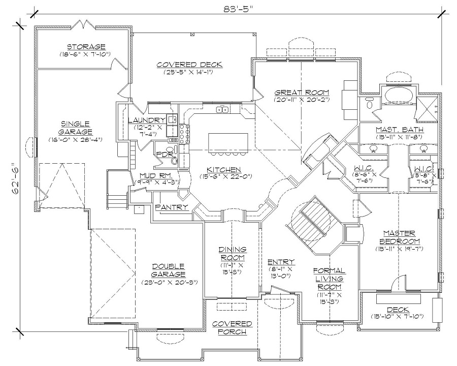
This is a great single story Texas/Mountain style house plan with 2647 square feet. The home plan has 5 bedrooms, 3 baths, and a 3-car garage; 4 bedrooms are on the lower level of the floor plan; the master suite is on the main level. The formal living and dining rooms and open floor plan layout on the main floor plan level are ideal for entertaining.
The house plan's basement (bedrooms, recreation room, and exercise room) ceiling height is 9 feet 9½ inches. The main floor plan level ceiling...
Estimate your costs based on your location and materials.
All sales of house plans, modifications, and other products found on this site are final. No refunds or exchanges can be given once your order has begun the fulfillment process. Please see our Policies for additional information.
All plans offered on ThePlanCollection.com are designed to conform to the local building codes when and where the original plan was drawn.
The homes as shown in photographs and renderings may differ from the actual blueprints. For more detailed information, please review the floor plan images herein carefully.
Estimate your costs based on your location and materials.





