Estimate your costs based on your location and materials.
Yes! This plan can be customized—contact us for a free quote.


Yes! This plan can be customized—contact us for a free quote.
PLEASE NOTE: Materials Lists are based on the STOCK plan ONLY without modifications! Custom materials lists are available if you modify a plan. Please ask for a quote.
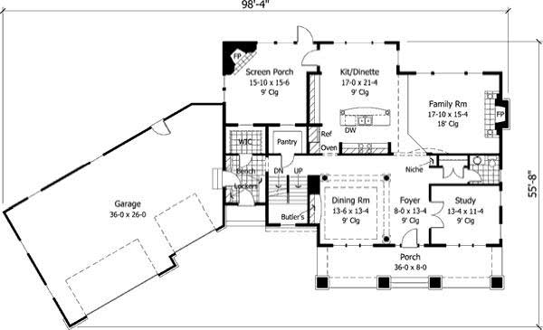
This traditional Farmhouse home plan has a country porch with stone-based columns and pretty windows that mark the facade of this well-designed home. Inside, the inviting foyer opens to the formal dining room with handsome columns and a built-in buffet. Across the way, you'll find a quiet study through a set of double doors. In a rear corner of the home, a majestic fireplace and a row of windows adorn the spacious family room. The nearby breakfast nook is perfect for serving meals and entertaining guests. The simple island kitchen takes advantage of a...
Estimate your costs based on your location and materials.
All sales of house plans, modifications, and other products found on this site are final. No refunds or exchanges can be given once your order has begun the fulfillment process. Please see our Policies for additional information.
All plans offered on ThePlanCollection.com are designed to conform to the local building codes when and where the original plan was drawn.
The homes as shown in photographs and renderings may differ from the actual blueprints. For more detailed information, please review the floor plan images herein carefully.
Estimate your costs based on your location and materials.









