2618 Sq Ft, 5 Bedroom Country Craftsman House Plan with 3-Car Garage

Craftsman style home (ThePlanCollection: House Plan #163-1055)

Images/Plans copyrighted by designer. Photos may reflect homeowner modifications.

About House Plan #163-1055

Sq Ft
2618
Sq Ft
Bedrooms
5
Bedrooms
Bathroom
4
Baths
Half Baths
1
Half Baths
Bedrooms
3
Cars
Bedrooms
1
Stories
Bedrooms
115' 9'
Width
Bedrooms
73
Depth
Starting at$1230.00What's included
STEP 1Bedrooms
STEP 2Bedrooms
STEP 3Bedrooms

Subtotal:$0
BedroomsBest Price Guaranteed
Plan Collection

How much will it cost to build?

Estimate your costs based on your location and materials.

Free Cost Instant Estimator

Floor Plans

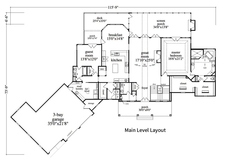
Floor Plan Main Level
Floor Plan Main Level
Floor Plan Basement
Floor Plan Basement
Plan Collection

Can I modify this plan?

Yes! This plan can be customized—contact us for a free quote.

Additional Notes from Designer

Please Note: There might be a 4-5 day delay in getting the sales orders out due to updates being made to the designer's plans.

House Plan Description

Perfect for a sloped lot or mountain setting, this rustic ranch house plan with Craftsman detailing offers 2618 living square feet, 5 bedrooms and 4.5 baths. The front is inviting and makes a great first impression.

The foyer leads to an expansive, vaulted great room with a fireplace. The screened porch is inviting, with an outdoor fireplace perfect for entertaining friends and family. It also allows for the perfect view to be enjoyed close to home. The huge, chef-like kitchen offers an island eating bar and leads to the large breakfast area that has wonderful views to the rear...

Home Details

Summary
Plan #:163-1055
Starting at:$1230.00
Floors:1
Bedrooms:5
Full Baths:4
Half Baths:1
Garage:
Square Footage
Heated Area:2618 Sq. Ft.
Basement:1960 Sq. Ft.
First Floor:2618 Sq. Ft.
Unheated Area:
Garage:856 Sq. Ft.
Porch:792 Sq. Ft.
Dimensions
Width:115' 9''
Depth:73' 9''
Ridge Height:23' 0''
Architectural Styles
Exterior Wall Material
Vinyl SidingWood Siding
Roofing Type
Gable
Roofing Material
Asphalt ShinglesMetal
Roof Pitch
3/124/1210/12
Ceiling Height
9 Foot Ceiling
Special Feature
FireplaceGuest RoomMud RoomFamily RoomGame RoomMain Level LaundryColor PhotosColor PhotosStorageVaulted CeilingsOpen Floor PlanInterior PhotosInterior Photos
Garage Type
Attached GarageCourtyard EntryFront Entry
Fireplaces
Two Fireplaces
Exterior Wall Framing
2x4
Building Lot Type
Down Site
Kitchen Features
Kitchen IslandPeninsula/Eating BarSecondary Kitchen
Porches and Exterior Features
Covered Front PorchCovered Rear PorchSundeckScreened Porch/Sunroom
Master Suite Features
Main Floor MasterMaster BathroomWalk In ClosetSplit Master Bedroom

What’s Included

Most plan sets include the following:

icon text-secondary-400 includedFLOOR PLAN: Showing all dimensions, window and door locations, laminated beams, columns, floor materials, ceiling heights, fireplace size, and specifications.

icon text-secondary-400 includedFOUNDATION PLAN: Dimensioned plan detailing the location and size of footings, slabs, reinforcing steel, and other structural elements that are required to support the load of the upper floors.

icon text-secondary-400 includedROOF PLAN: Dimensioned plan showing the elements that make up the roof, including notation of spacing and schematics of peaks and valleys.

icon text-secondary-400 includedFRONT, REAR, AND SIDE ELEVATIONS:The front, rear, and side elevations of the house as drawn. Shows placement of doors & windows on exterior of house, as well as roof pitches, ridge heights, and locations of chimney, exterior vents, etc. The elevations show the positioning of the final grade of the lot, exterior finishes, and other details that are necessary to give the home exterior architectural styling.

icon text-secondary-400 includedCROSS SECTIONS AND INTERIOR DETAILS:Explain certain special conditions more appropriately. A cross section is basically a view of the home (or parts of the home) if it were sliced down the center. These details can be helpful for the contractor.Includes cabinet details and typical details.

What’s Not Included

These items are  NOT included:

icon text-secondary-400 includedArchitectural or Engineering Stamp - handled locally if required.

icon text-secondary-400 includedSite Plan - handled locally when required.

icon text-secondary-400 includedElectrical Layout (location of light fixtures, switches, and fans)- Although may be available for an additional charge.

icon text-secondary-400 includedMechanical Drawings (location of heating and air equipment and ductwork) - your subcontractors handle this.

icon text-secondary-400 includedPlumbing Drawings (drawings showing the actual plumbing pipe sizes and locations) - your subcontractors handle this.

icon text-secondary-400 includedEnergy calculations - handled locally when required.

Related House Plans

Plan Collection
Plan Collection
Plan Collection
Plan#153-1868
Starting at$1100
2880
Sq Ft
1
Story
5
Bed
4
Bath
3
Car
Plan Collection
Plan Collection
Plan Collection
Plan#153-1659
Starting at$1350
3003
Sq Ft
1
Story
5
Bed
4
Bath
3
Car
Plan Collection
Plan Collection
Plan Collection
Plan#135-1078
Starting at$1725
2878
Sq Ft
1
Story
5
Bed
4
Bath
4
Car
View All

Other Plans By This Designer

Plan Collection
Plan Collection
Plan Collection
Plan#163-1017
Starting at$990
1314
Sq Ft
2
Story
2
Bed
2
Bath
0
Car
Plan Collection
Plan Collection
Plan Collection
Plan#163-1041
Starting at$600
906
Sq Ft
2
Story
1
Bed
1
Bath
2
Car
Plan Collection
Plan Collection
Plan Collection
Plan#163-1052
Starting at$1150
4225
Sq Ft
1
Story
5
Bed
4.5
Bath
3
Car