Estimate your costs based on your location and materials.
Yes! This plan can be customized—contact us for a free quote.



Yes! This plan can be customized—contact us for a free quote.
The plans by this designer do NOT include framing. PLEASE NOTE: An Unlimited Use License is available for purchase through the designer BUT YOU MUST purchase a CAD package!
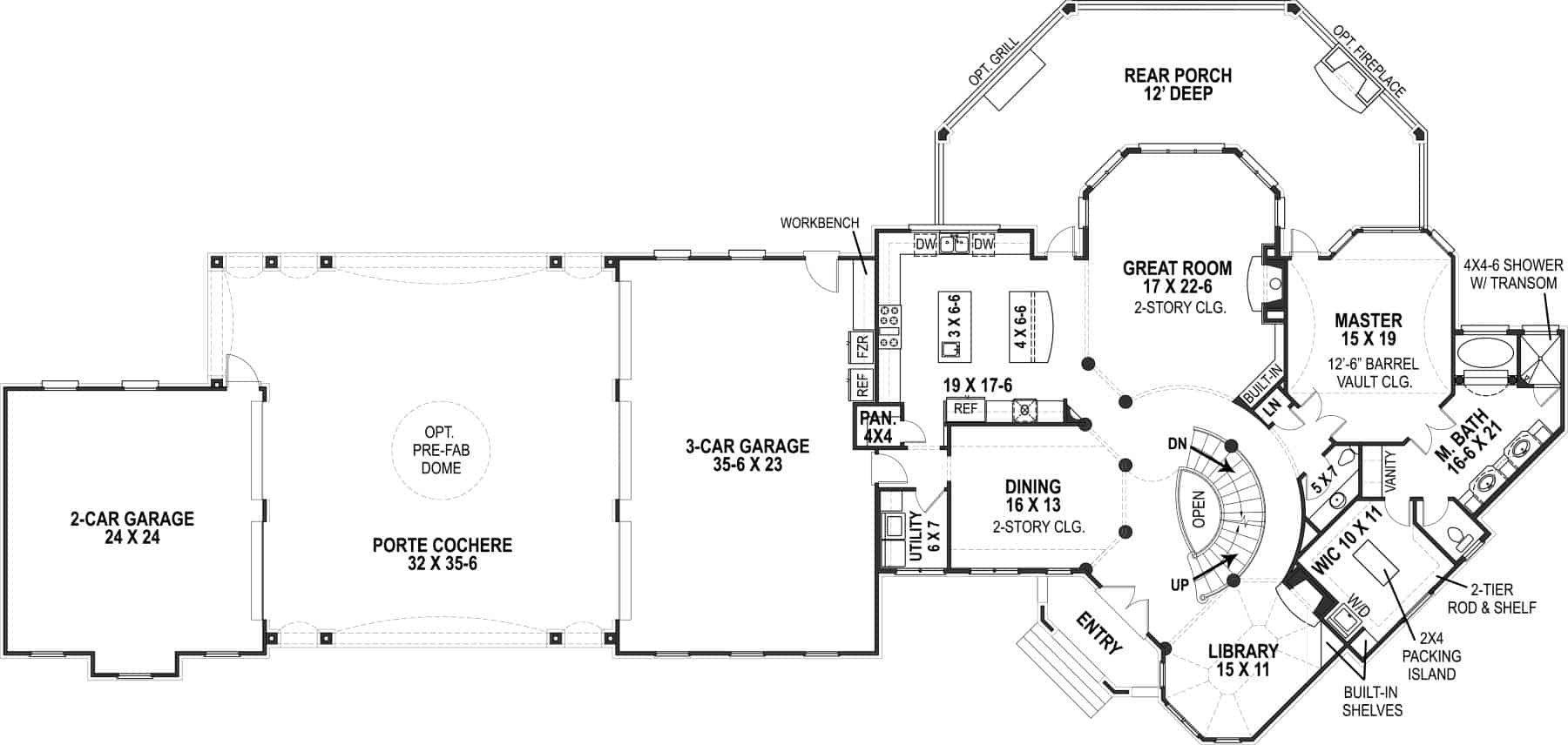
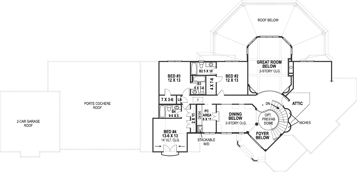
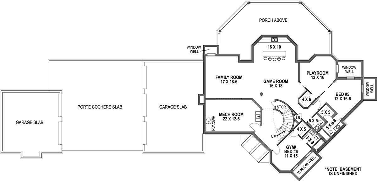
Note: There is an unfinished basement option for this home. If selected and finished, the basement adds an additional 1707 living sq ft to the home, including two bedrooms and 2.5 bathrooms — for a total of 5020 living sq ft, 6 bedrooms, 6 bathrooms, and 2 half-baths.
Attention to detail and smart design define this impressive European-style manor with French influences. As you approach from the driveway, leave your car under the porte-cochere or park it in one of the 5-bay-garage spaces.
Estimate your costs based on your location and materials.
All sales of house plans, modifications, and other products found on this site are final. No refunds or exchanges can be given once your order has begun the fulfillment process. Please see our Policies for additional information.
All plans offered on ThePlanCollection.com are designed to conform to the local building codes when and where the original plan was drawn.
The homes as shown in photographs and renderings may differ from the actual blueprints. For more detailed information, please review the floor plan images herein carefully.
Estimate your costs based on your location and materials.














