4-Bedroom, 2742 Sq Ft Farmhouse with Bonus Room

Front elevation of Country home (ThePlanCollection: House Plan #142-1185)

Images/Plans copyrighted by designer. Photos may reflect homeowner modifications.

About House Plan #142-1185

Sq Ft
2742
Sq Ft
Bedrooms
4
Bedrooms
Bathroom
3
Baths
Half Baths
1
Half Baths
Bedrooms
2
Cars
Bedrooms
1.5
Stories
Bedrooms
76' 8'
Width
Bedrooms
61
Depth
Starting at$1495.00What's included
STEP 1Bedrooms
STEP 2Bedrooms
STEP 3Bedrooms

Subtotal:$0
BedroomsBest Price Guaranteed
Plan Collection

How much will it cost to build?

Estimate your costs based on your location and materials.

Free Cost Instant Estimator

Floor Plans

Floor Plan Main Level
Floor Plan Main Level
Basement Option Stair Location
Basement Option Stair Location
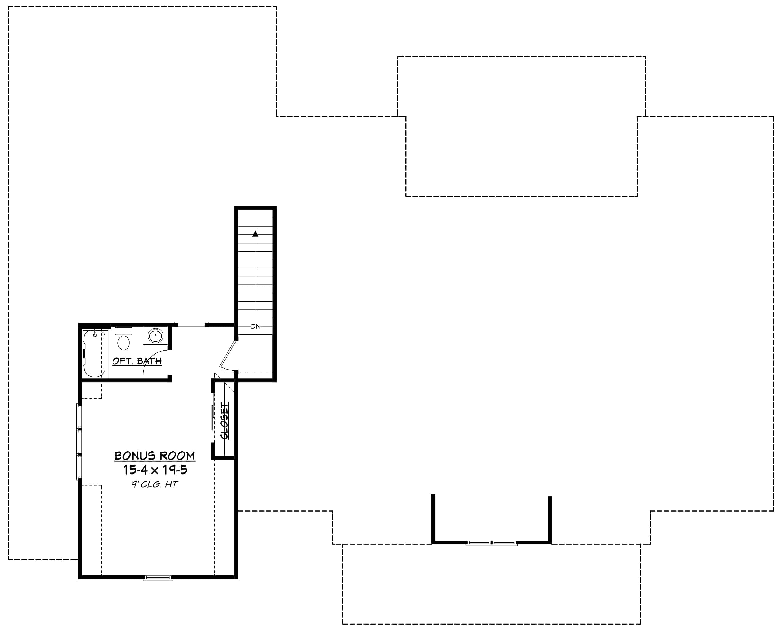
Floor Plan Bonus Room
Floor Plan Bonus Room
Plan Collection

Can I modify this plan?

Yes! This plan can be customized—contact us for a free quote.

Additional Notes from Designer

On some plans, Basement Foundations, Walkout Basement Foundations, & 2x6 Conversions could take up to ONE WEEK to produce. Materials Lists could take up to FOUR WEEKS to produce and they will be for the ORIGINAL plan! Any modifications will NOT be reflected on the Materials List. NOTE FROM DESIGNER: If you purchase a CAD, you will automatically receive the unlimited build license - no need to purchase separately!

Please note the total sqaure footage of this home is 4394.

House Plan Description

Splendid and charming, this 4-bedroom, contemporary -- or transitional -- farmhouse brings a new, updated look to country homes. The front covered porch makes for cool places to enjoy summer nights. Entering through the high ceiling foyer, the dining room with its coffered ceiling is to the left. Moving to the center of the home, the gas-log fireplace flanked by builtins creates an inviting and comforting environment. The chef's kitchen boasts an island, eating bar, and plenty of counter space. Steps away are the is the butler's pantry leading to the walk-in pantry and access to...

Home Details

Summary
Plan #:142-1185
Starting at:$1495.00
Floors:1.5
Bedrooms:4
Full Baths:3
Half Baths:1
Garage:
Square Footage
Heated Area:2742 Sq. Ft.
First Floor:2742 Sq. Ft.
Unheated Area:
Bonus Room:433 Sq. Ft.
Garage:563 Sq. Ft.
Porch:571 Sq. Ft.
Dimensions
Width:76' 8''
Depth:61' 10''
Architectural Styles
Roofing Type
Gable
Roofing Material
Asphalt ShinglesMetal
Roof Pitch
12/129/12
Ceiling Height
10 Foot Ceiling9 Foot Ceiling11 Foot Ceiling12 Foot Ceiling
Special Feature
FireplaceDining RoomMud RoomBonus RoomMain Level LaundryColor PhotosSplit BathroomStorageVaulted CeilingsOpen Floor PlanInterior Photos
Garage Type
Attached GarageSide Entry
Fireplaces
One Fireplace
Exterior Wall Framing
2x4
Kitchen Features
Kitchen IslandButler's PantryWalk-in PantryPeninsula/Eating Bar
Porches and Exterior Features
Covered Front PorchCovered Rear Porch
Master Suite Features
Main Floor MasterMaster BathroomWalk In ClosetSplit Master Bedroom

What’s Included

Most plan sets include the following:

icon text-secondary-400 includedCover sheet

icon text-secondary-400 includedFoundation plan

icon text-secondary-400 includedDimensional floor plan

icon text-secondary-400 includedExterior views

icon text-secondary-400 includedRoof plan

icon text-secondary-400 includedElectrical layout

icon text-secondary-400 includedWall section(s)

icon text-secondary-400 includedBuilding section(s)

icon text-secondary-400 includedCabinet elevations

What’s Not Included

These items are  NOT included:

icon text-secondary-400 includedArchitectural or Engineering Stamp - handled locally if required.

icon text-secondary-400 includedSite Plan - handled locally when required.

icon text-secondary-400 includedMechanical Drawings (location of heating and air equipment and ductwork) - your subcontractors handle this.

icon text-secondary-400 includedPlumbing Drawings (drawings showing the actual plumbing pipe sizes and locations) - your subcontractors handle this.

icon text-secondary-400 includedEnergy calculations - handled locally when required.

icon text-secondary-400 includedNo Framing

Related House Plans

Plan Collection
Plan Collection
Plan Collection
Plan#142-1208
Starting at$1445
2165
Sq Ft
1.5
Story
3
Bed
2
Bath
2
Car
Plan Collection
Plan Collection
Plan Collection
Plan#142-1205
Starting at$1445
2201
Sq Ft
1
Story
3
Bed
2.5
Bath
2
Car
Plan Collection
Plan Collection
Plan Collection
Plan#142-1177
Starting at$1445
2073
Sq Ft
1
Story
3
Bed
2
Bath
2
Car
View All

Other Plans By This Designer

Plan Collection
Plan Collection
Plan Collection
Plan#142-1244
Starting at$1645
3086
Sq Ft
1
Story
4
Bed
3.5
Bath
3
Car
Plan Collection
Plan Collection
Plan Collection
Plan#142-1204
Starting at$1445
2373
Sq Ft
1
Story
4
Bed
2.5
Bath
2
Car
Plan Collection
Plan Collection
Plan Collection
Plan#142-1470
Starting at$1445
2000
Sq Ft
1
Story
3
Bed
2.5
Bath
2
Car