Estimate your costs based on your location and materials.
Yes! This plan can be customized—contact us for a free quote.

Yes! This plan can be customized—contact us for a free quote.
PLEASE NOTE! When ordering options such as an optional foundation, RRR, or 2x4 or 2x6 conversions, the designer may require an additional 2-5 business days to create it. Please keep this in mind when ordering.
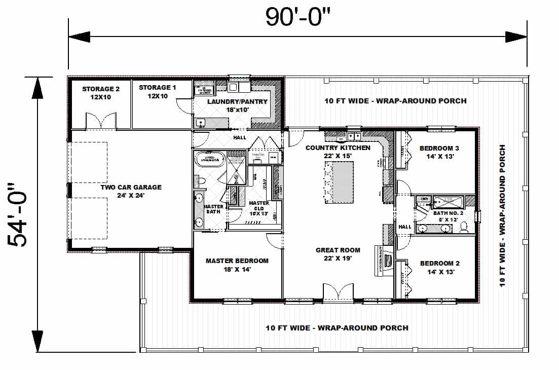
This Ranch-Country style home is sure to be one of your favorites. The house plan fits perfectly on a corner lot with the front of the house facing the main road and the car entrance of the garage facing the intersecting street. It covers a total heated-cooled area of 2090 square feet with a 576-square-foot 2-car garage located on the left side of the house.
The colonnaded front porch, metal roof, and brick materials on the siding give the house a pleasant look. The grand entrance door leads you to the Great Room and the wide kitchen...
Estimate your costs based on your location and materials.
All sales of house plans, modifications, and other products found on this site are final. No refunds or exchanges can be given once your order has begun the fulfillment process. Please see our Policies for additional information.
All plans offered on ThePlanCollection.com are designed to conform to the local building codes when and where the original plan was drawn.
The homes as shown in photographs and renderings may differ from the actual blueprints. For more detailed information, please review the floor plan images herein carefully.
Estimate your costs based on your location and materials.























