Estimate your costs based on your location and materials.
Yes! This plan can be customized—contact us for a free quote.


Yes! This plan can be customized—contact us for a free quote.
Please Note: CAD Files for this plan typically take 2-3 additional business days to prepare. PLEASE NOTE: Some options (different foundations, RRR, etc.) may take an additional 2-3 business days to prepare! Please keep this in mind regarding shipping when ordering. Thank you!
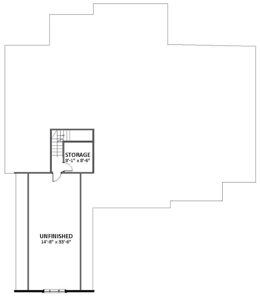
Bursting with charm, this Ranch style home also has Contemporary Craftsman characteristics and may be exactly what you're looking for! The pleasant living spaces, spacious rooms, and delightful amenities are evident in the home and all blend in together well for the owners' convenience. This elegant 1-story floor plan has 2954 square feet of heated and cooled living space – plus a 561-square-foot unfinished bonus room over the garage – and includes 3 bedrooms.
Estimate your costs based on your location and materials.
All sales of house plans, modifications, and other products found on this site are final. No refunds or exchanges can be given once your order has begun the fulfillment process. Please see our Policies for additional information.
All plans offered on ThePlanCollection.com are designed to conform to the local building codes when and where the original plan was drawn.
The homes as shown in photographs and renderings may differ from the actual blueprints. For more detailed information, please review the floor plan images herein carefully.
Estimate your costs based on your location and materials.



