Estimate your costs based on your location and materials.
Yes! This plan can be customized—contact us for a free quote.


Yes! This plan can be customized—contact us for a free quote.
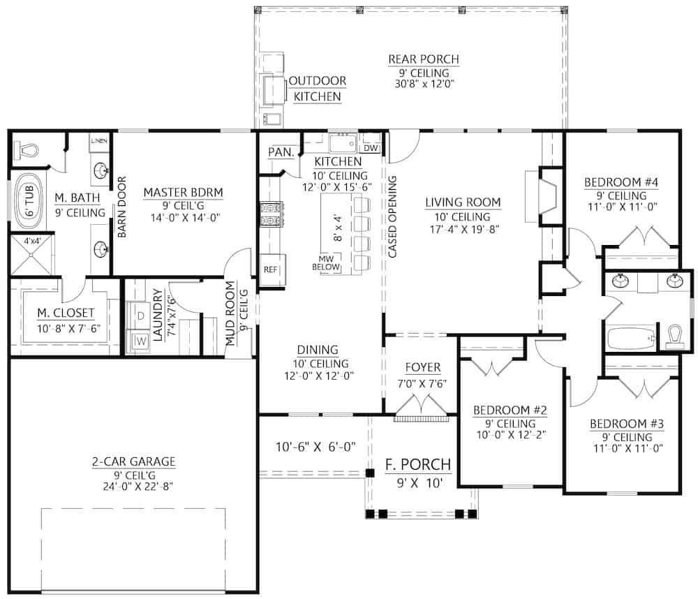
With four bedrooms, two baths, and a great layout, it’s easy to see why this wonderful ranch home is so well-liked. The 1889-square-foot home has an open floor plan with a living room, dining room, and a kitchen with a huge island and pantry. Off the dining/kitchen area are the mudroom and laundry area which can also be accessed through the 2-car garage.
With a welcoming front porch and a covered back porch with an outdoor kitchen, you can relax wherever you like on a nice summer day or entertain with family and friends. On a rainy day, you can retreat to the primary suite...
Estimate your costs based on your location and materials.
All sales of house plans, modifications, and other products found on this site are final. No refunds or exchanges can be given once your order has begun the fulfillment process. Please see our Policies for additional information.
All plans offered on ThePlanCollection.com are designed to conform to the local building codes when and where the original plan was drawn.
The homes as shown in photographs and renderings may differ from the actual blueprints. For more detailed information, please review the floor plan images herein carefully.
Estimate your costs based on your location and materials.




