4-Bedroom, 2470 Sq Ft Country Plan with Photos

Country Craftsman home (ThePlanCollection: Plan #153-1781)

Images/Plans copyrighted by designer. Photos may reflect homeowner modifications.

About House Plan #153-1781

Sq Ft
2470
Sq Ft
Bedrooms
4
Bedrooms
Bathroom
2
Baths
Half Baths
1
Half Baths
Bedrooms
2
Cars
Bedrooms
1.5
Stories
Bedrooms
47' 4'
Width
Bedrooms
58
Depth
Starting at$1200.00What's included
STEP 1Bedrooms
STEP 2Bedrooms
STEP 3Bedrooms

Subtotal:$0
BedroomsBest Price Guaranteed
Plan Collection

How much will it cost to build?

Estimate your costs based on your location and materials.

Free Cost Instant Estimator

Floor Plans

Floor Plan First Story
Floor Plan First Story
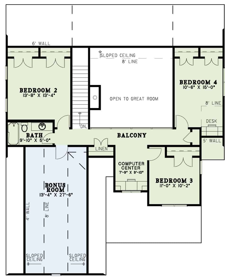
Floor Plan Upper Level
Floor Plan Upper Level
Plan Collection

Can I modify this plan?

Yes! This plan can be customized—contact us for a free quote.

Additional Notes from Designer

Plans by this designer do NOT usually come with FRAMING - some plans may have framing available for an extra fee - please contact us to find out about a specific plan & we will check with the designer!! Additionally: For this designer, if you choose optional features such as but not limited to: 2x6 framing, reverse or optional basement, the designer will need an additional 2-5 business days to adjust the plan accordingly. Please keep this in mind when choosing your shipping option. If you would like Express or Priority shipping, the designer will ship the plan to you using the method you choose but you will still have the 2-5 business day waiting period BEFORE they ship! Please feel free to contact us with any questions! PLEASE NOTE: Multi-licenses are available. The plans do not come with ICF specifications. If ICF construction method is desired, the CAD plan can be purchased and then forwarded to the ICF dealer and they’ll do a takeoff to assist with that specific projec

COMMENTS: 10 box columns on the front porch. There is a foyer with arched opening to the great room. Dining room with access to the kitchen. Great Room with fireplace, media center, built-ins, and access to the rear grilling porch. The kitchen is open to the great room with snack bar to breakfast room and walk-in pantry. Master suite with computer center and access to the rear porch. Master bath with shower, whirlpool tub, split vanities, and walk-in closet. Kid's nook with bench for storage. Upper floor computer center. All of the bedrooms come with ample closet space. Bedroom 4 has a built-in desk. Bonus room for future media room. The total square footage is 3771. The dimensions are measured from outside to outside wall.

House Plan Description

One of our favorite homes. This two-story, country Craftsman has stunning curb appeal with its shakes and brick exterior. The elegant arches in front lead to a large, covered porch. Entering through the front door, you are greeted by an attractive foyer that opens out into the great room – the center and heart of the home - with an impressive fireplace and built-ins to the left. To the right is a large, modern kitchen with an eating bar – ideal for entertaining guests or spending time with family. Both the breakfast room and great room open out to the grilling porch...

Home Details

Summary
Plan #:153-1781
Starting at:$1200.00
Floors:1.5
Bedrooms:4
Full Baths:2
Half Baths:1
Garage:
Square Footage
Heated Area:2470 Sq. Ft.
First Floor:1595 Sq. Ft.
Second Floor:875 Sq. Ft.
Unheated Area:
Bonus Room:389 Sq. Ft.
Garage:492 Sq. Ft.
Porch:420 Sq. Ft.
Dimensions
Width:47' 4''
Depth:58' 8''
Ridge Height:28' 0''
Architectural Styles
Exterior Wall Material
Rock/StoneShakes
Roofing Type
GableGable/Dormer
Roofing Material
Asphalt Shingles
Roof Pitch
10/12
Ceiling Height
9 Foot Ceiling8 Foot Ceiling
Special Feature
FireplaceDining RoomHome OfficeBonus RoomFamily RoomMain Level LaundryMedia RoomColor PhotosColor PhotosSplit BathroomBalconyInterior PhotosInterior Photos
Garage Type
Attached GarageFront Entry
Fireplaces
One Fireplace
Exterior Wall Framing
2x4
Building Lot Type
Flat Site
Kitchen Features
Nook/Breakfast AreaWalk-in PantryPeninsula/Eating Bar
Porches and Exterior Features
Covered Front PorchCovered Rear Porch
Master Suite Features
Main Floor MasterMaster BathroomWalk In ClosetSplit Master Bedroom

What’s Included

Most plan sets include the following:

icon text-secondary-400 included floorplan

icon text-secondary-400 included 4 side exterior elevations,

icon text-secondary-400 included electrical plan,

icon text-secondary-400 included birds-eye view of the roof,

icon text-secondary-400 included foundation plan,

icon text-secondary-400 included and some miscellaneous details. Please Note We do not offer plumbing, HVAC, or window scheduling. This will have to be done on a local level, probably by your building team!

What’s Not Included

These items are  NOT included:

icon text-secondary-400 includedArchitectural or Engineering Stamp - handled locally if required.

icon text-secondary-400 includedSite Plan - handled locally when required.

icon text-secondary-400 includedMechanical Drawings (location of heating and air equipment and ductwork) - your subcontractors handle this.

icon text-secondary-400 includedPlumbing Drawings (drawings showing the actual plumbing pipe sizes and locations) - your subcontractors handle this.

icon text-secondary-400 includedEnergy calculations - handled locally when required.

Related House Plans

Plan Collection
Plan Collection
Plan Collection
Plan#153-1706
Starting at$1200
2363
Sq Ft
2
Story
3
Bed
3
Bath
2
Car
Plan Collection
Plan Collection
Plan Collection
Plan#153-1786
Starting at$1200
2363
Sq Ft
2
Story
4
Bed
3
Bath
2
Car
Plan Collection
Plan Collection
Plan Collection
Plan#153-1757
Starting at$1350
2952
Sq Ft
2
Story
4
Bed
3
Bath
2
Car
View All

Other Plans By This Designer

Plan Collection
Plan Collection
Plan Collection
Plan#153-1454
Starting at$1100
2039
Sq Ft
1
Story
4
Bed
3
Bath
2
Car
Plan Collection
Plan Collection
Plan Collection
Plan#153-1249
Starting at$1100
1927
Sq Ft
2
Story
3
Bed
2
Bath
2
Car
Plan Collection
Plan Collection
Plan Collection
Plan#153-1324
Starting at$1200
1169
Sq Ft
1
Story
3
Bed
2
Bath
0
Car