Estimate your costs based on your location and materials.
Yes! This plan can be customized—contact us for a free quote.

Yes! This plan can be customized—contact us for a free quote.
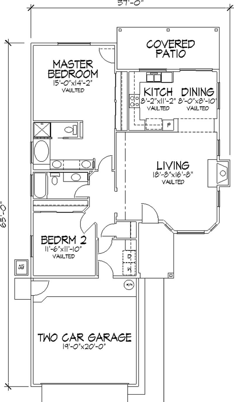
This compact Sunbelt-style home features both comfortable living spaces and an affordable price tag, a rare combination. Inside, vaulted ceilings crown every room in the home, lending a spacious, open feel to the design. The U-shaped kitchen merges with the dining room, creating an inviting spot where you will enjoy boisterous family meals.
Estimate your costs based on your location and materials.
All sales of house plans, modifications, and other products found on this site are final. No refunds or exchanges can be given once your order has begun the fulfillment process. Please see our Policies for additional information.
All plans offered on ThePlanCollection.com are designed to conform to the local building codes when and where the original plan was drawn.
The homes as shown in photographs and renderings may differ from the actual blueprints. For more detailed information, please review the floor plan images herein carefully.
Estimate your costs based on your location and materials.

