2–5-Bedroom, 2658–4354 Sq Ft Contemporary Plan with 10-Foot Ceilings

Contemporary home (ThePlanCollection: Plan #161-1125)
Plan Collection View Video

Images/Plans copyrighted by designer. Photos may reflect homeowner modifications.

About House Plan #161-1125

Sq Ft
2658
Sq Ft
Bedrooms
2
Bedrooms
Bathroom
2
Baths
Half Baths
0
Half Baths
Bedrooms
3
Cars
Bedrooms
1
Stories
Bedrooms
128' 11'
Width
Bedrooms
64
Depth
Starting at$1750.00What's included
STEP 1Bedrooms
STEP 2Bedrooms
STEP 3Bedrooms

Subtotal:$0
BedroomsBest Price Guaranteed
Plan Collection

How much will it cost to build?

Estimate your costs based on your location and materials.

Free Cost Instant Estimator

Floor Plans

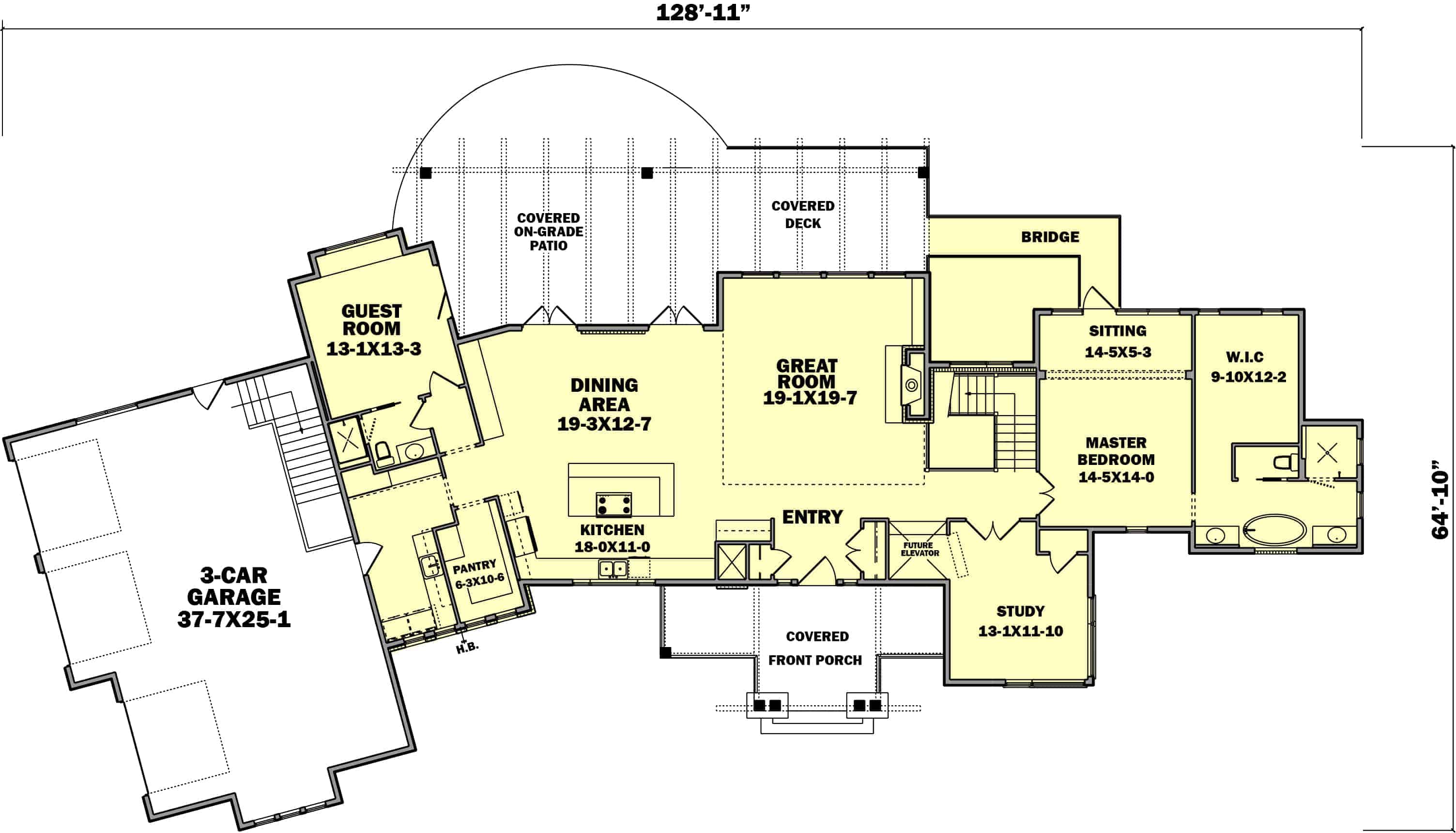
Floor Plan Main Level
Floor Plan Main Level
Basement Option Layout
Basement Option Layout
Plan Collection

Can I modify this plan?

Yes! This plan can be customized—contact us for a free quote.

Additional Notes from Designer

PLEASE NOTE! This designer's plans do NOT come with framing!

House Plan Description

Filled with artsy charm this Contemporary Ranch style home has many lovely features to meet the demands of each member of the family.  The main floor contains a heated and cooled area of 2658 square feet, and the optional finished basement has 1696 square feet (plus 962 square feet of unfinished storage space) should you choose to finish it according to the suggested floor plan – for a possible total of 4354 finished square feet. The house has multiple roof lines and selective use of natural materials, giving it an innovative, modern design.

The lovely front...

Home Details

Summary
Plan #:161-1125
Starting at:$1750.00
Floors:1
Bedrooms:2
Full Baths:2
Half Baths:0
Garage:
Square Footage
Heated Area:2658 Sq. Ft.
First Floor:2658 Sq. Ft.
Unheated Area:
Basement:2658 Sq. Ft.
Garage:1112 Sq. Ft.
Porch:1882 Sq. Ft.
Dimensions
Width:128' 11''
Depth:64' 10''
Architectural Styles
Exterior Wall Material
Vinyl SidingStuccoRock/StoneWood Siding
Roofing Type
GableShed
Roofing Material
Asphalt ShinglesMetal
Roof Pitch
3/126/12
Ceiling Height
10 Foot Ceiling
Special Feature
FireplaceDining RoomGuest RoomMud RoomFamily RoomMain Level LaundryLibraryColor PhotosSplit BathroomVideoOpen Floor PlanInterior Photos
Garage Type
Attached GarageSide Entry
Fireplaces
One Fireplace
Exterior Wall Framing
2x6
Building Lot Type
Corner Lot
Kitchen Features
Kitchen IslandWalk-in PantryPeninsula/Eating Bar
Porches and Exterior Features
Covered Front PorchSundeckCovered Rear Patio
Master Suite Features
Main Floor MasterMaster BathroomWalk In ClosetSitting AreaSplit Master Bedroom

What’s Included

Most plan sets include the following:

icon text-secondary-400 includedExterior elevations

icon text-secondary-400 includedMain Floor plan

icon text-secondary-400 includedArchitectural’ Foundation Plan

icon text-secondary-400 includedArchitectural’ Roof Plan

icon text-secondary-400 includedSections

icon text-secondary-400 includedMain Floor Electrical Plan

icon text-secondary-400 includedNo Framing

What’s Not Included

These items are  NOT included:

icon text-secondary-400 includedArchitectural or Engineering Stamp - handled locally if required.

icon text-secondary-400 includedSite Plan - handled locally when required.

icon text-secondary-400 includedPlumbing Drawings (drawings showing the actual plumbing pipe sizes and locations) - your subcontractors handle this.

icon text-secondary-400 includedEnergy calculations - handled locally when required.

Related House Plans

Plan Collection
Plan Collection
Plan Collection
Plan#194-1010
Starting at$1550
2605
Sq Ft
1
Story
2
Bed
2.5
Bath
3
Car
Plan Collection
Plan Collection
Plan Collection
Plan#161-1085
Starting at$1750
2593
Sq Ft
1
Story
2
Bed
2.5
Bath
3
Car
Plan Collection
Plan Collection
Plan Collection
Plan#161-1042
Starting at$2200
3321
Sq Ft
1
Story
2
Bed
2.5
Bath
3
Car
View All

Other Plans By This Designer

Plan Collection
Plan Collection
Plan Collection
Plan#161-1145
Starting at$2650
3907
Sq Ft
2
Story
4
Bed
3.5
Bath
3
Car
Plan Collection
Plan Collection
Plan Collection
Plan#161-1077
Starting at$4500
6563
Sq Ft
2
Story
5
Bed
4.5
Bath
5
Car
Plan Collection
Plan Collection
Plan Collection
Plan#161-1151
Starting at$1950
3149
Sq Ft
2
Story
4
Bed
3.5
Bath
3
Car