Estimate your costs based on your location and materials.
Yes! This plan can be customized—contact us for a free quote.

Yes! This plan can be customized—contact us for a free quote.
PLEASE NOTE!! For this designer, The PDF that comes with the PRINT Packages (5 set+PDF and 8 set+PDF) is NOT Modifiable - it is for printing ONLY! PLEASE NOTE!! Optional Foundations (foundations that cost extra money) will take 5-10 business days to complete.
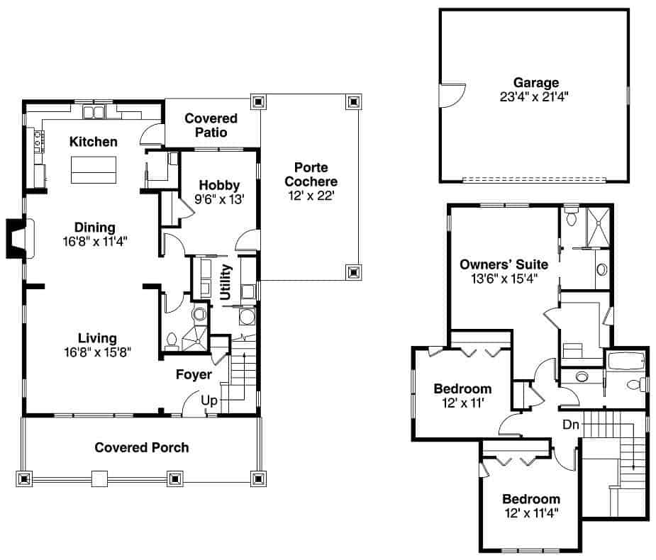
This two-story Craftsman bungalow has such wonderful curb appeal! With a relatively narrow width, it would fit in well in either a suburban or more urban neighborhood. The exterior details are impressive. Classic Craftsman pillars support the front porch and the side port-cochere. The sidelights on either side of the front door are attractive and provide additional light. The shed dormer completes the bungalow Craftsman look.
Step in from the front porch inside to a foyer with space for coats and a staircase leading to the second floor. From the foyer, enter into a large...
Estimate your costs based on your location and materials.
All sales of house plans, modifications, and other products found on this site are final. No refunds or exchanges can be given once your order has begun the fulfillment process. Please see our Policies for additional information.
All plans offered on ThePlanCollection.com are designed to conform to the local building codes when and where the original plan was drawn.
The homes as shown in photographs and renderings may differ from the actual blueprints. For more detailed information, please review the floor plan images herein carefully.
Estimate your costs based on your location and materials.




