Estimate your costs based on your location and materials.
Yes! This plan can be customized—contact us for a free quote.

Yes! This plan can be customized—contact us for a free quote.
Plans by this designer do NOT usually come with FRAMING - some plans may have framing available for an extra fee - please contact us to find out about a specific plan & we will check with the designer!! Additionally: For this designer, if you choose optional features such as but not limited to: 2x6 framing, reverse or optional basement, the designer will need an additional 2-5 business days to adjust the plan accordingly. Please keep this in mind when choosing your shipping option. If you would like Express or Priority shipping, the designer will ship the plan to you using the method you choose but you will still have the 2-5 business day waiting period BEFORE they ship! Please feel free to contact us with any questions! PLEASE NOTE: Multi-licenses are available. The plans do not come with ICF specifications. If ICF construction method is desired, the CAD plan can be purchased and then forwarded to the ICF dealer and they’ll do a takeoff to assist with that specific projec
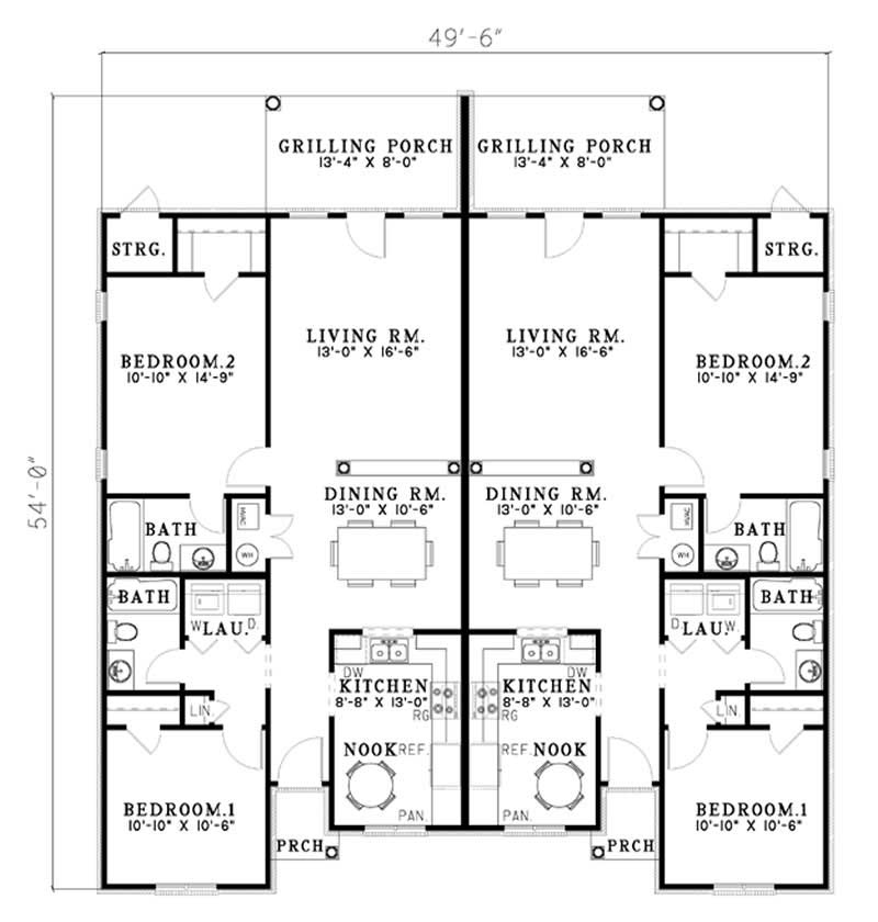
This duplex has the street appeal of a single family home. The stage is set for elegance as you enter the foyer from a covered entry. Imagine hosting an exquisite dinner party in the formal dining room separated by columns and base unit with optional storage below. After dinner, you and your guests can retire to the spacious living room or rear grilling porch and enjoy conversation. When the guests leave, you and your loved one can find relaxation in the master suite with a full bathroom and walk-in closet. The second bedroom will be perfect for guests, or double as a home office.
Estimate your costs based on your location and materials.
All sales of house plans, modifications, and other products found on this site are final. No refunds or exchanges can be given once your order has begun the fulfillment process. Please see our Policies for additional information.
All plans offered on ThePlanCollection.com are designed to conform to the local building codes when and where the original plan was drawn.
The homes as shown in photographs and renderings may differ from the actual blueprints. For more detailed information, please review the floor plan images herein carefully.
Estimate your costs based on your location and materials.


