Estimate your costs based on your location and materials.
Yes! This plan can be customized—contact us for a free quote.


Yes! This plan can be customized—contact us for a free quote.
NOTE FROM DESIGNER REGARDING PLAN PURCHASES: 80% of a 5 set purchase price can be applied to any PDF or CAD license upgrade. Additionally, 80% of PDF Study purchase price can be applied to any CAD or PDF license upgrade.
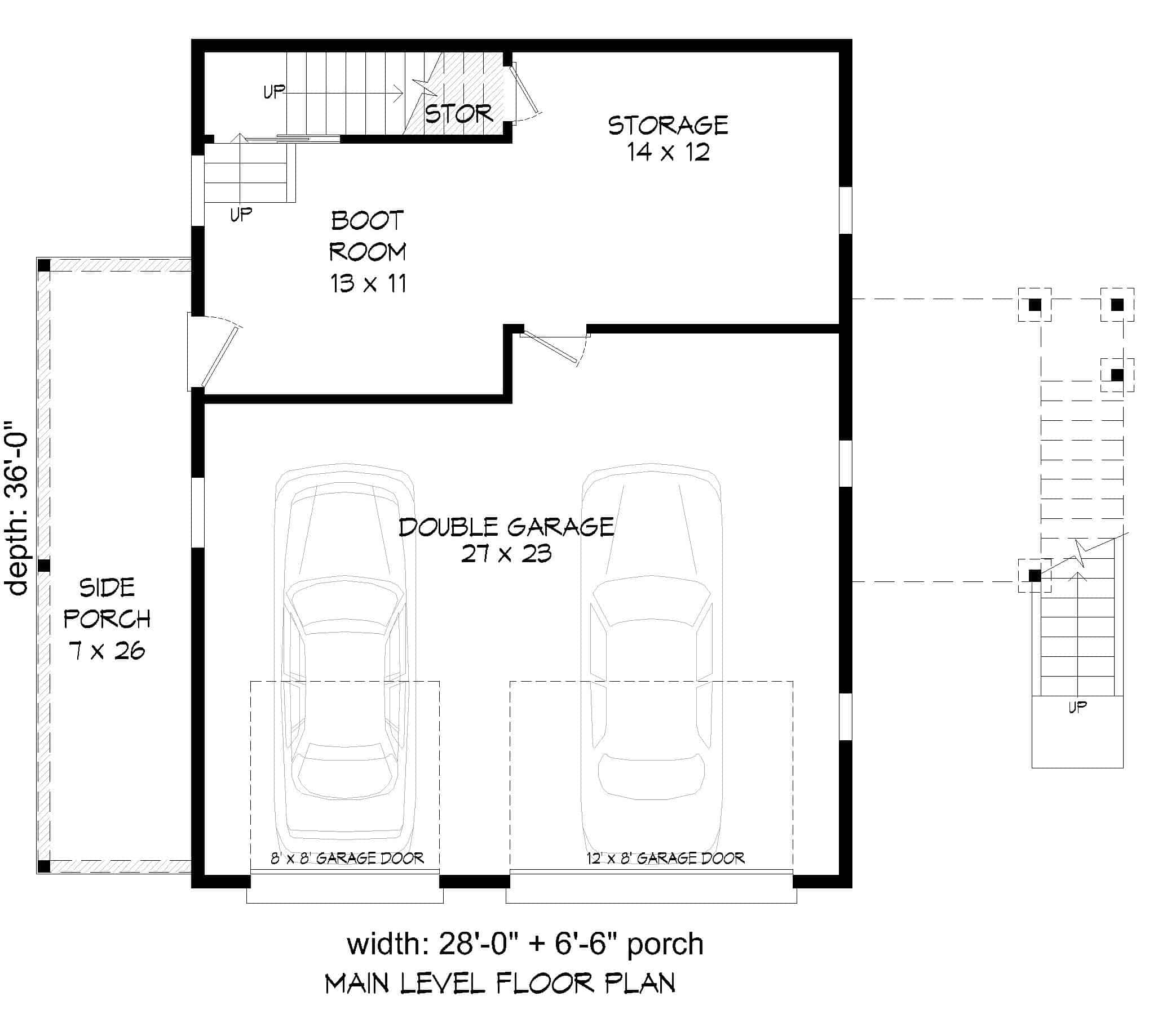
You'll enjoy coming home to this compact Farmhouse-Cottage style home – simple but elegant. It would be great for retirement downsizing, a vacation getaway, or a starter home, with a storage area cum boot/mudroom cum workshop outside the garage and almost 800 square feet of living space upstairs. The adorable small home's 2-story floor plan has a total of 1132 square feet of heated and cooled living space.
Estimate your costs based on your location and materials.
All sales of house plans, modifications, and other products found on this site are final. No refunds or exchanges can be given once your order has begun the fulfillment process. Please see our Policies for additional information.
All plans offered on ThePlanCollection.com are designed to conform to the local building codes when and where the original plan was drawn.
The homes as shown in photographs and renderings may differ from the actual blueprints. For more detailed information, please review the floor plan images herein carefully.
Estimate your costs based on your location and materials.






