Estimate your costs based on your location and materials.
Yes! This plan can be customized—contact us for a free quote.


Yes! This plan can be customized—contact us for a free quote.
NOTE FROM DESIGNER REGARDING PLAN PURCHASES: 80% of a 5 set purchase price can be applied to any PDF or CAD license upgrade. Additionally, 80% of PDF Study purchase price can be applied to any CAD or PDF license upgrade.
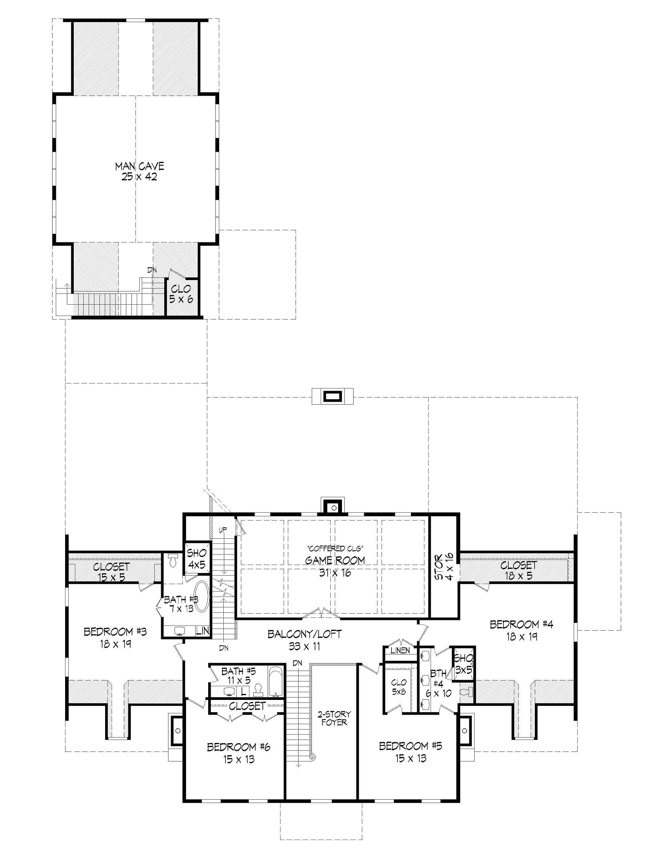
From the moment you arrive you'll be enthralled with every detail this luxurious Georgian style home has to offer. The impressive open and bright two-story home has too many wonderful features to list, including a safe room and his and her walk-in closets in the master bedroom suite, a traditional yet open floor plan with coffered ceilings, large game room, man cove over the garage, an office, an outdoor kitchen, and more. Covering a total heated and cooled area of 7200 with 5 bedrooms, the Colonial home may well be your family’s top choice once they...
Estimate your costs based on your location and materials.
All sales of house plans, modifications, and other products found on this site are final. No refunds or exchanges can be given once your order has begun the fulfillment process. Please see our Policies for additional information.
All plans offered on ThePlanCollection.com are designed to conform to the local building codes when and where the original plan was drawn.
The homes as shown in photographs and renderings may differ from the actual blueprints. For more detailed information, please review the floor plan images herein carefully.
Estimate your costs based on your location and materials.








