Estimate your costs based on your location and materials.
Yes! This plan can be customized—contact us for a free quote.

Yes! This plan can be customized—contact us for a free quote.
PLEASE NOTE!! For this designer, The PDF that comes with the PRINT Packages (5 set+PDF and 8 set+PDF) is NOT Modifiable - it is for printing ONLY!
PLEASE NOTE!! Optional Foundations (foundations that cost extra money) will take 5-10 business days to complete.
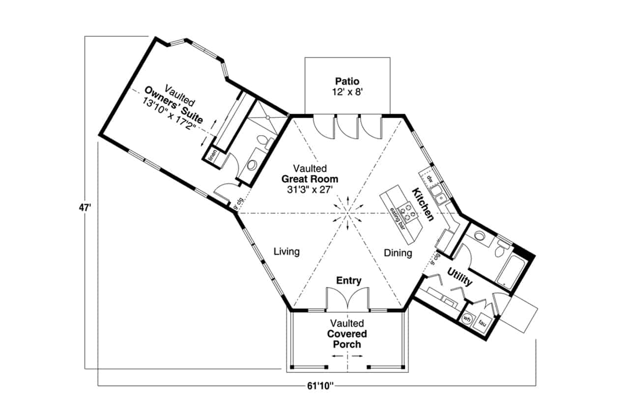
This Single Family Cottage Style House Plan has 1219 living square feet, 1 bedroom, and 2 bathrooms.
The multiple roof levels and pleasant porch with turned columns give this cottage home with country style an interesting character. The Great Room stands out with it hexagon shape, taking in plenty of views of the outdoors. The pleasant 1-story floor plan has 1219 square feet of fully conditioned living space. Enjoy these special amenities:
• Open concept
• Vaulted ceiling
• Spacious utility room
• Lots of storage space
Estimate your costs based on your location and materials.
All sales of house plans, modifications, and other products found on this site are final. No refunds or exchanges can be given once your order has begun the fulfillment process. Please see our Policies for additional information.
All plans offered on ThePlanCollection.com are designed to conform to the local building codes when and where the original plan was drawn.
The homes as shown in photographs and renderings may differ from the actual blueprints. For more detailed information, please review the floor plan images herein carefully.
Estimate your costs based on your location and materials.




