Estimate your costs based on your location and materials.
Yes! This plan can be customized—contact us for a free quote.

Yes! This plan can be customized—contact us for a free quote.
PLEASE NOTE!! For this designer, The PDF that comes with the PRINT Packages (5 set+PDF and 8 set+PDF) is NOT Modifiable - it is for printing ONLY!
PLEASE NOTE!! Optional Foundations (foundations that cost extra money) will take 5-10 business days to complete.
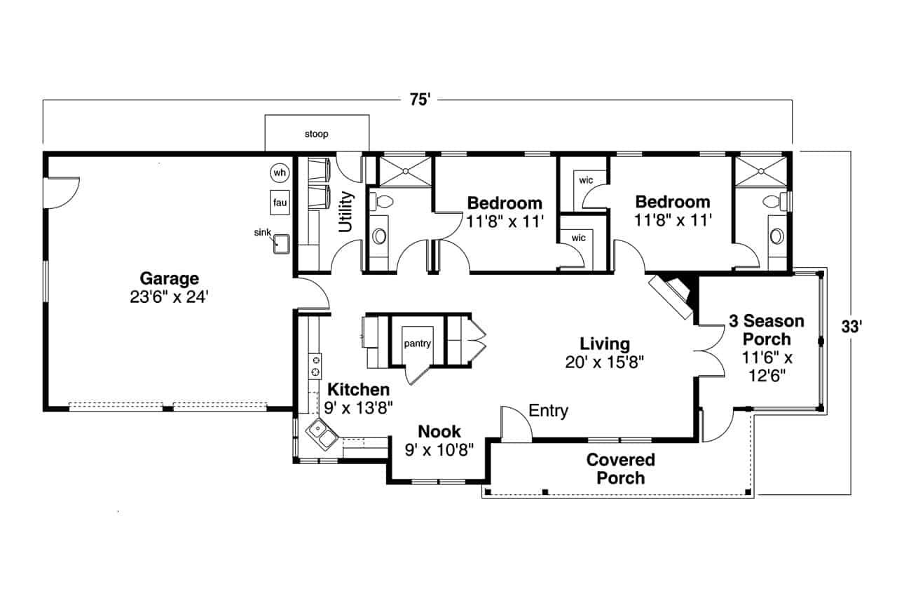
This Single Family Country Traditional Style House Plan has 1258 square feet, 2 bedrooms, and 2 bathrooms.
Comfort and energy-efficient home offered by this Country Traditional style home. There is definitely no wasted space in this house! The pleasant 1-story floor plan has 1258 square feet of fully conditioned living space and includes these great amenities:
• Fireplace in the living room
• Spacious walk-in closets
• Huge walk-in kitchen pantry
• Utility room
• Lots of storage space
Estimate your costs based on your location and materials.
All sales of house plans, modifications, and other products found on this site are final. No refunds or exchanges can be given once your order has begun the fulfillment process. Please see our Policies for additional information.
All plans offered on ThePlanCollection.com are designed to conform to the local building codes when and where the original plan was drawn.
The homes as shown in photographs and renderings may differ from the actual blueprints. For more detailed information, please review the floor plan images herein carefully.
Estimate your costs based on your location and materials.




