Estimate your costs based on your location and materials.
Yes! This plan can be customized—contact us for a free quote.

Yes! This plan can be customized—contact us for a free quote.
When ordering RRR, please know that it could take an additional 2-3 business days to complete BEFORE your order is sent out, regardless of the package ordered.
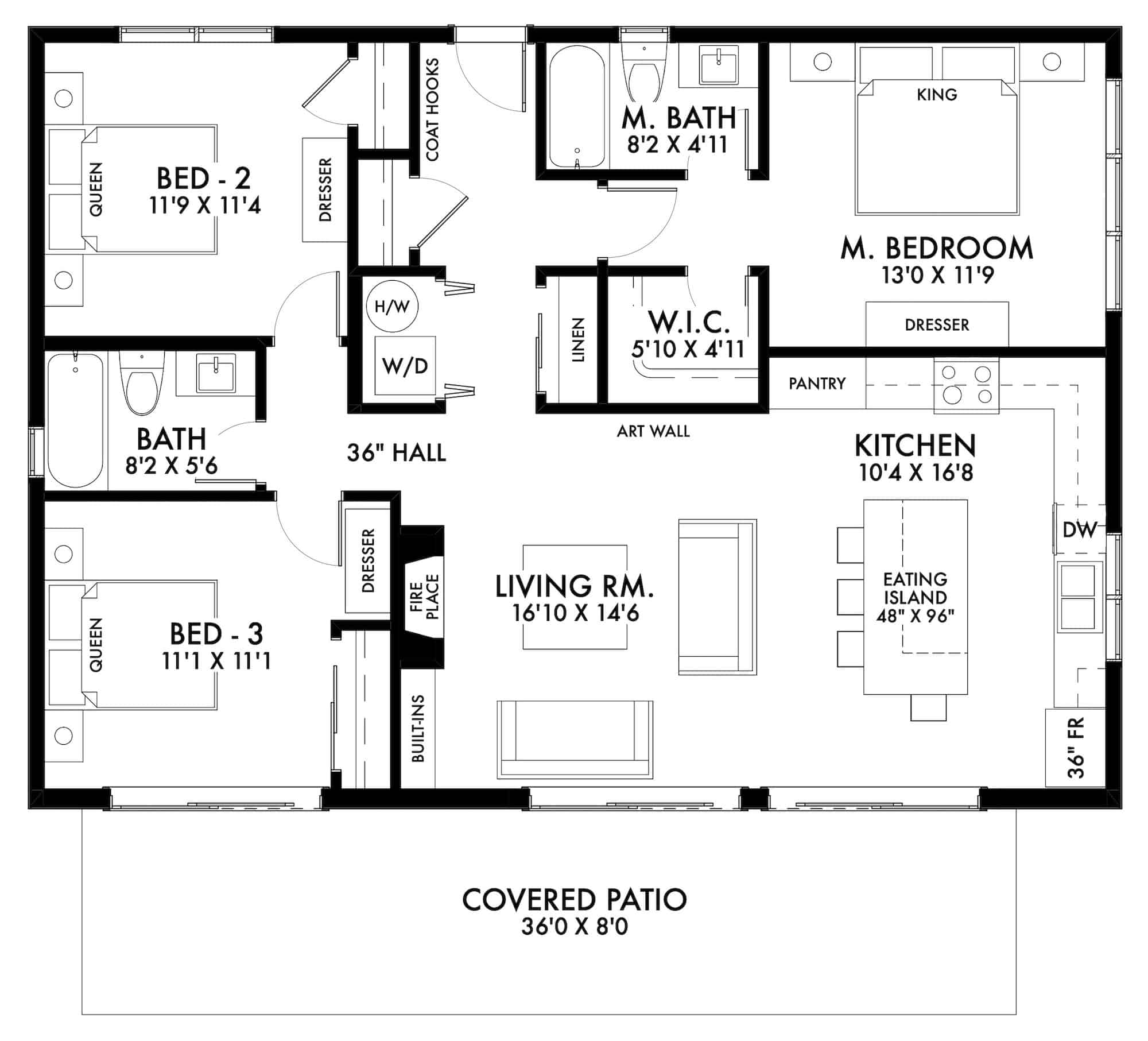
Enjoy this well-designed Contemporary style home which features innovative design and is sure to capture your heart. The front entry, lovely windows, and style-appropriate materials give the house design a very interesting curb appeal. The elegant home's 1-story floor plan has 1260 square feet of living space and provides these wonderful amenities:
• Open concept living room
• Fireplace in the living room
• Lots of storage space
This home's roof pitch is 1/12, the ceiling heights are 8'-3'' and...
Estimate your costs based on your location and materials.
All sales of house plans, modifications, and other products found on this site are final. No refunds or exchanges can be given once your order has begun the fulfillment process. Please see our Policies for additional information.
All plans offered on ThePlanCollection.com are designed to conform to the local building codes when and where the original plan was drawn.
The homes as shown in photographs and renderings may differ from the actual blueprints. For more detailed information, please review the floor plan images herein carefully.
Estimate your costs based on your location and materials.








