4-Bedroom, 2658 Sq Ft Contemporary Plan with Walk-In Closet

Front elevation of Contemporary home (ThePlanCollection: House Plan #142-1444)

Images/Plans copyrighted by designer. Photos may reflect homeowner modifications.

About House Plan #142-1444

Sq Ft
2658
Sq Ft
Bedrooms
4
Bedrooms
Bathroom
3
Baths
Half Baths
1
Half Baths
Bedrooms
2
Cars
Bedrooms
1.5
Stories
Bedrooms
64' 2'
Width
Bedrooms
77
Depth
Starting at$1495.00What's included
STEP 1Bedrooms
STEP 2Bedrooms
STEP 3Bedrooms

Subtotal:$0
BedroomsBest Price Guaranteed
Plan Collection

How much will it cost to build?

Estimate your costs based on your location and materials.

Free Cost Instant Estimator

Floor Plans

Main Level
Main Level
Basement Option Stair Location
Basement Option Stair Location
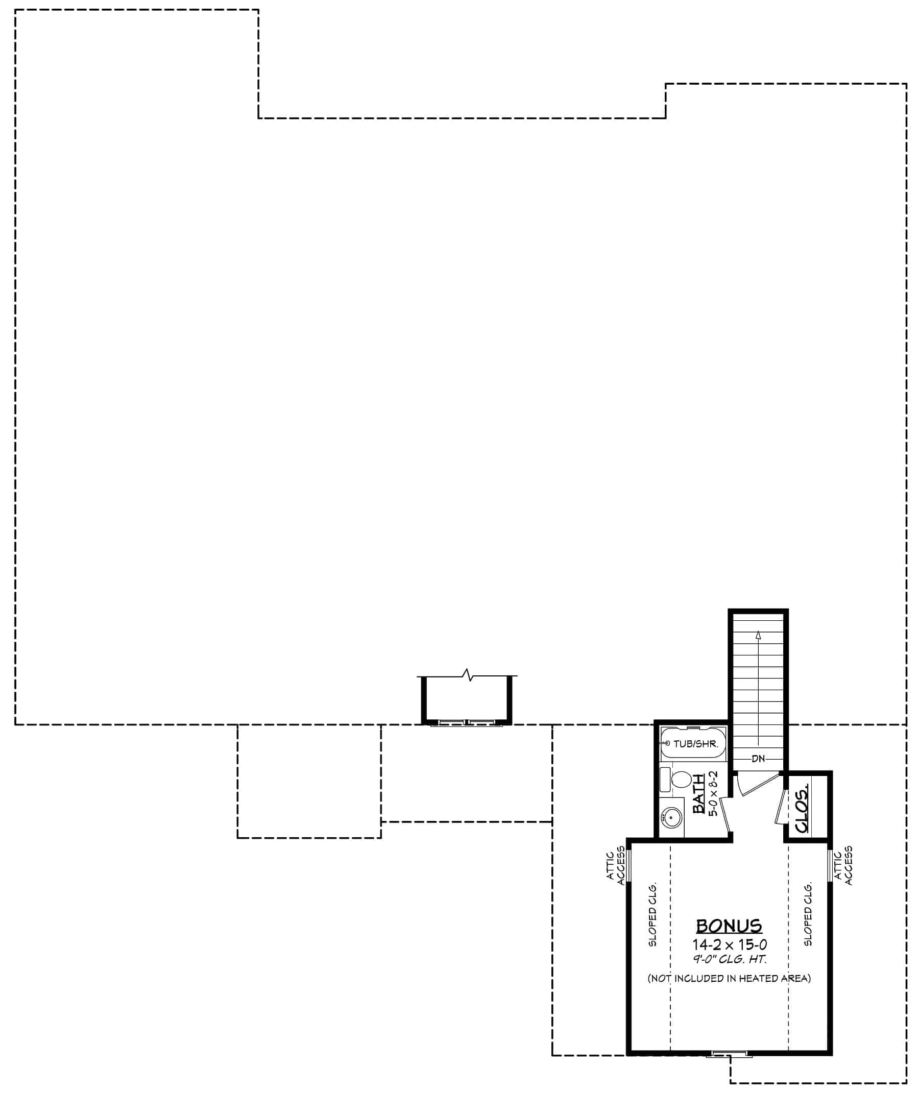
Bonus Room
Bonus Room
Plan Collection

Can I modify this plan?

Yes! This plan can be customized—contact us for a free quote.

Additional Notes from Designer

On some plans, Basement Foundations, Walkout Basement Foundations, & 2x6 Conversions could take up to ONE WEEK to produce. Materials Lists could take up to FOUR WEEKS to produce and they will be for the ORIGINAL plan! Any modifications will NOT be reflected on the Materials List. NOTE FROM DESIGNER: If you purchase a CAD, you will automatically receive the unlimited build license - no need to purchase separately!

This single-family Contemporary Style House Plan has 2658 living square feet, 4 bedrooms, 3.5 bathrooms, and a 2-car garage space.

Note 1: With the basement option, the home has a total of 2735 heated square feet, 1490 unheated square feet, and the depth is 81’ 8”.

Note 2: Porch sq ft figures may include any deck sq ft as well.

 

 

House Plan Description

This excellent Contemporary style home has 2658 square feet of fully conditioned living space that provides spacious rooms which every member of the family will surely love. The multiple gables and large windows in front and a pleasant entry porch give this home an interesting character. The remarkable 1.5-story floor plan also features special amenities such as:

• Huge walk-in pantry
• Spacious walk-in closets
• Bonus room
• Powder room
• Lots of storage space

Home Details

Summary
Plan #:142-1444
Starting at:$1495.00
Floors:1.5
Bedrooms:4
Full Baths:3
Half Baths:1
Garage:
Square Footage
Heated Area:2658 Sq. Ft.
First Floor:2658 Sq. Ft.
Unheated Area:
Bonus Room:315 Sq. Ft.
Garage:633 Sq. Ft.
Porch:464 Sq. Ft.
Dimensions
Width:64' 2''
Depth:77' 4''
Architectural Styles
Exterior Wall Material
Vinyl SidingWood Siding
Roofing Type
Gable/Dormer
Roofing Material
Asphalt ShinglesMetal
Roof Pitch
12/123/124/128/12
Ceiling Height
10 Foot Ceiling9 Foot Ceiling
Special Feature
Dining RoomMud RoomBonus RoomFamily RoomMain Level LaundryColor PhotosColor PhotosSplit BathroomStorageOpen Floor Plan
Garage Type
Attached GarageFront Entry
Exterior Wall Framing
2x4
Building Lot Type
Flat Site
Kitchen Features
Kitchen IslandWalk-in Pantry
Porches and Exterior Features
Covered Front PorchCovered Rear Porch
Master Suite Features
Main Floor MasterMaster BathroomWalk In ClosetSplit Master Bedroom

What’s Included

Most plan sets include the following:

icon text-secondary-400 includedCover sheet

icon text-secondary-400 includedFoundation plan

icon text-secondary-400 includedDimensional floor plan

icon text-secondary-400 includedExterior views

icon text-secondary-400 includedRoof plan

icon text-secondary-400 includedElectrical layout

icon text-secondary-400 includedWall section(s)

icon text-secondary-400 includedBuilding section(s)

icon text-secondary-400 includedCabinet elevations

What’s Not Included

These items are  NOT included:

icon text-secondary-400 includedArchitectural or Engineering Stamp - handled locally if required.

icon text-secondary-400 includedSite Plan - handled locally when required.

icon text-secondary-400 includedMechanical Drawings (location of heating and air equipment and ductwork) - your subcontractors handle this.

icon text-secondary-400 includedPlumbing Drawings (drawings showing the actual plumbing pipe sizes and locations) - your subcontractors handle this.

icon text-secondary-400 includedEnergy calculations - handled locally when required.

icon text-secondary-400 includedNo Framing

Related House Plans

Plan Collection
Plan Collection
Plan Collection
Plan#142-1185
Starting at$1495
2742
Sq Ft
1.5
Story
4
Bed
3.5
Bath
2
Car
Plan Collection
Plan Collection
Plan Collection
Plan#153-1990
Starting at$1850
3084
Sq Ft
1.5
Story
4
Bed
3.5
Bath
2
Car
Plan Collection
Plan Collection
Plan Collection
Plan#142-1231
Starting at$1445
2390
Sq Ft
1.5
Story
4
Bed
3
Bath
2
Car
View All

Other Plans By This Designer

Plan Collection
Plan Collection
Plan Collection
Plan#142-1244
Starting at$1645
3086
Sq Ft
1
Story
4
Bed
3.5
Bath
3
Car
Plan Collection
Plan Collection
Plan Collection
Plan#142-1204
Starting at$1445
2373
Sq Ft
1
Story
4
Bed
2.5
Bath
2
Car
Plan Collection
Plan Collection
Plan Collection
Plan#142-1470
Starting at$1445
2000
Sq Ft
1
Story
3
Bed
2.5
Bath
2
Car