Estimate your costs based on your location and materials.
Yes! This plan can be customized—contact us for a free quote.

Yes! This plan can be customized—contact us for a free quote.
NO Material lists.
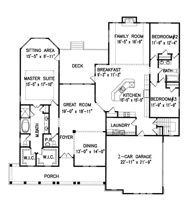
This lovely one-story Farmhouse style home with open layout and excellent design is sure to please every member of the family. The forward-facing gables, large and roomy front porch, substantial columns, and large windows give the house a fascinating character. The enchanting home's 1-story floor plan has 2830 square feet of heated and cooled living space and includes 3 bedrooms.
Estimate your costs based on your location and materials.
All sales of house plans, modifications, and other products found on this site are final. No refunds or exchanges can be given once your order has begun the fulfillment process. Please see our Policies for additional information.
All plans offered on ThePlanCollection.com are designed to conform to the local building codes when and where the original plan was drawn.
The homes as shown in photographs and renderings may differ from the actual blueprints. For more detailed information, please review the floor plan images herein carefully.
Estimate your costs based on your location and materials.

