Estimate your costs based on your location and materials.
Yes! This plan can be customized—contact us for a free quote.



Yes! This plan can be customized—contact us for a free quote.
NO Material lists.
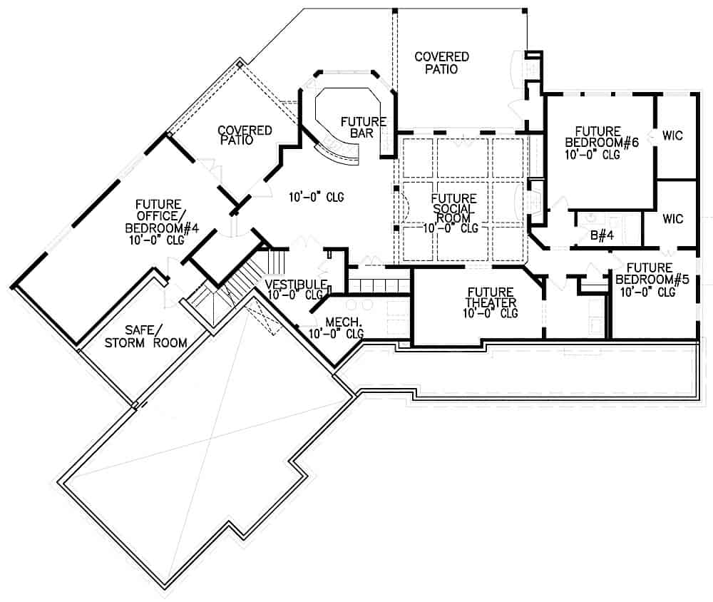
This delightful Cottage style home with Farmhouse attributes (Plan #198-1017) has 2947 square feet of conditioned living space, not uncluding the optional finished basement. The 1 story floor plan includes 3 bedrooms, 2 full bathrooms, and a half bath. Should you choose to finish the lower level at a future date according to the suggested floor plan, you would add 3 bedrooms (or 2 bedrooms and an office), a full bathroom, a social room with bar, a home theater, a safe/storm room, a mechanical room, and plenty of storage.
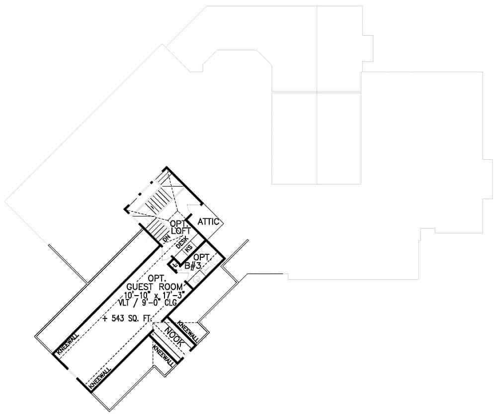
In addition, there's a bonus room over the garage...
Estimate your costs based on your location and materials.
All sales of house plans, modifications, and other products found on this site are final. No refunds or exchanges can be given once your order has begun the fulfillment process. Please see our Policies for additional information.
All plans offered on ThePlanCollection.com are designed to conform to the local building codes when and where the original plan was drawn.
The homes as shown in photographs and renderings may differ from the actual blueprints. For more detailed information, please review the floor plan images herein carefully.
Estimate your costs based on your location and materials.







